Current Developments
We’re busy working on new up and coming builds.
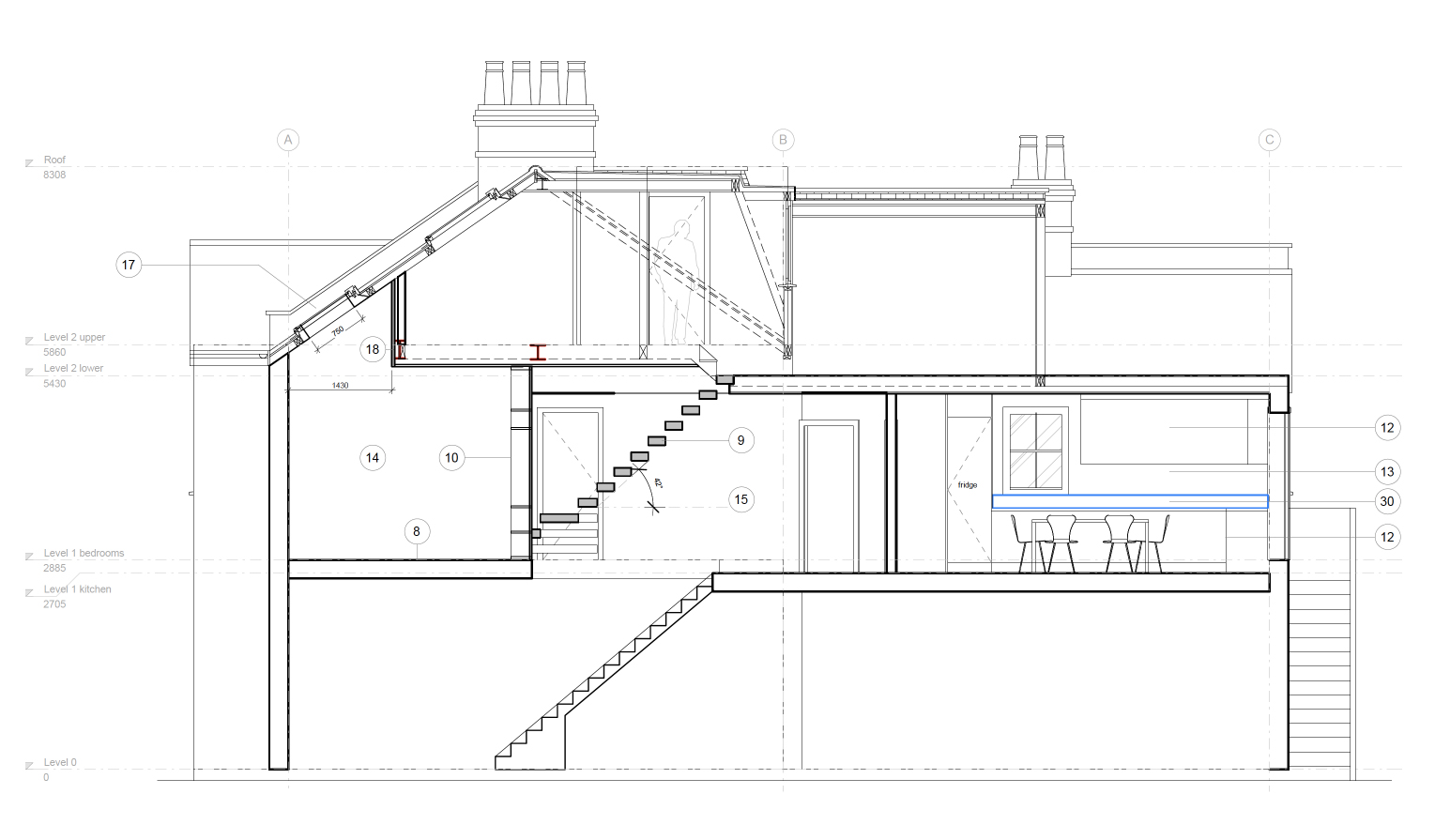
WIMBLEDON
APARTMENT REfurbishmen
Refurbishment of the first floor of a two storey flat including a new glass and metal partition and a “folded” metal stair with timber steps and thin vertical rods.
